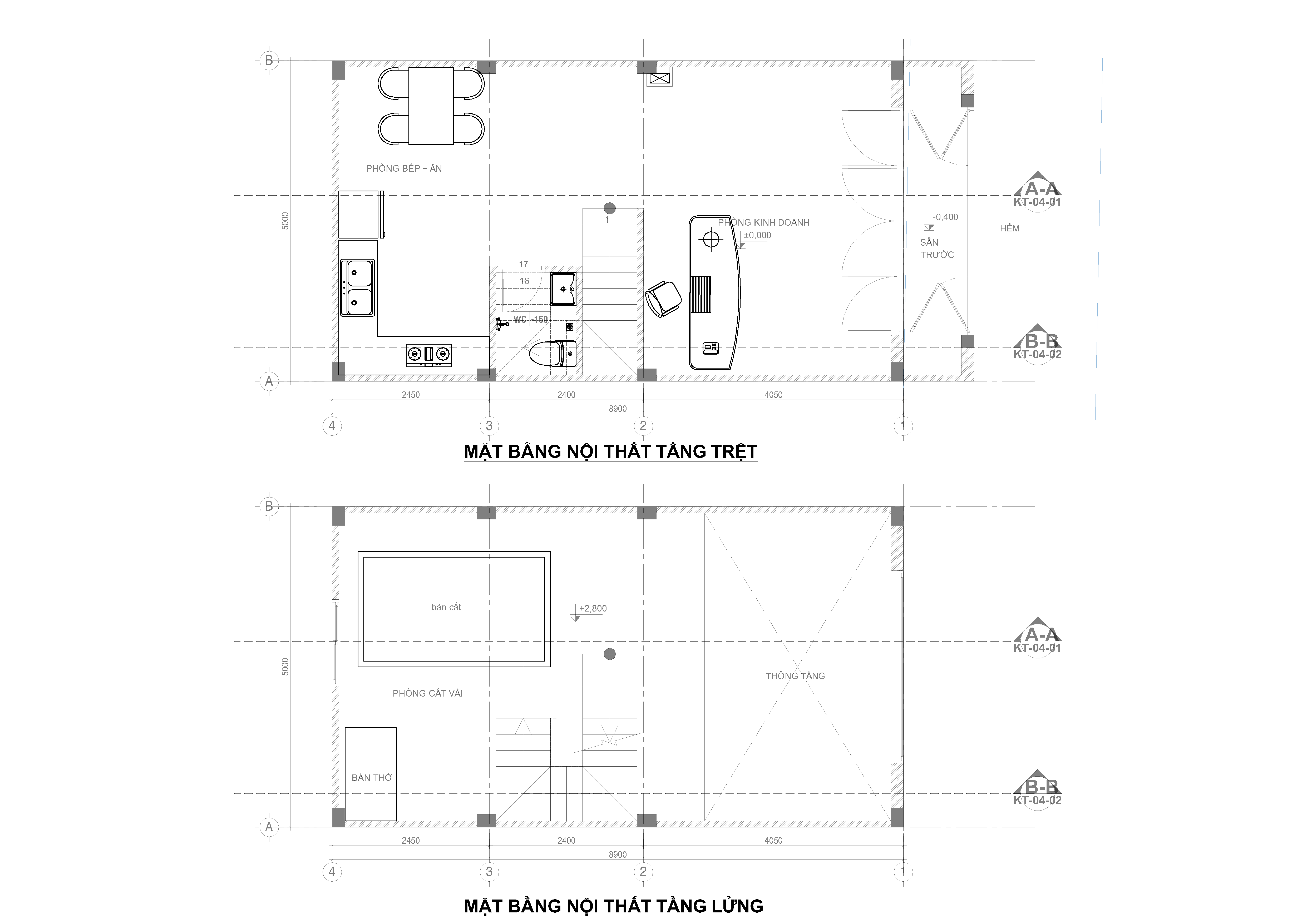
NHÀ PHỐ CỔ ĐIỂN 5X12

NHÀ PHỐ CỔ ĐIỂN 5X12

NHÀ PHỐ CỔ ĐIỂN 5X12

VSEPQUANGNGAI

KIENTRUCQUANGNGAI
XAYDUNGVSEP

NHÀ PHỐ

NHÀ PHỐ CỔ ĐIỂN 5X12

×
Đăng nhập

Đăng nhập

Bạn chưa có tài khoản ? Đăng ký

Quên mật khẩu

Đăng ký tài khoản

security

Đăng ký

Bạn đã có tài khoản ? Đăng nhập

Khôi phục mật khẩu
captcha

Lấy mật khẩu

Bạn chưa có tài khoản ? Đăng ký